お気に入りの登録はありません。
閲覧履歴はありません。

学芸大学駅 、30坪~50坪の賃貸オフィス・貸事務所

検索結果 2件 ( 2区画)

officeeでお問い合わせいただいた場合、仲介手数料はすべて無料です。

駅徒歩:すべて表示
築年数:すべて表示
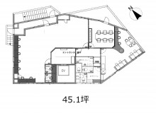
フラットフォービルの図面

フラットフォービル

住所
目黒区鷹番1-1-5
最寄り駅
学芸大学駅 10分
竣工
2001年
耐震
新耐震基準を満たす
ビル詳細へ
階数坪数月額費用坪単価入居可能日追加  
5階 45.13坪 902,600円 20,000円 確認中
お気に入りに追加
内見・資料請求
区画詳細へ

チェックした物件をまとめて問い合わせすることができます。

サーカス学芸大学の外観

サーカス学芸大学

住所
目黒区鷹番3-14-14
最寄り駅
学芸大学駅 3分
竣工
1989年
耐震
新耐震基準を満たす
ビル詳細へ
  • サーカス学芸大学の外観

  • オフィスビル出入口

  • エントランス

  • エレベーター

  • サーカス学芸大学前面

  • 斜め向かいのまいばす

  • 徒歩2分のファミリー

基準階約48坪の賃貸オフィス物件。空調は個別空調です。竣工は1989年。5階建てで、エレベーターは1基設置されています。セキュリティは、エレベーター不停止機能を採用。
階数坪数月額費用坪単価入居可能日追加  
1階 42.96坪 816,240円 19,000円 相談
お気に入りに追加
内見・資料請求
区画詳細へ

チェックした物件をまとめて問い合わせすることができます。

チェックした物件を
お気に入りに追加
まとめてお問い合わせ

お気に入り物件登録は最大10件までです。
既にお気に入りに登録している物件を削除するか、
チェックの数を減らしてからご登録ください。

OK

お気に入りに追加しました

近隣の駅から探す

近隣のエリアから探す

学芸大学駅の賃料相場

  • 20坪~30坪
    -
    30坪~50坪
    21,000円
  • 50坪~100坪
    -
    100坪~200坪
    -
  • 200坪以上
    -

現在の検索条件

駅を変更する

こだわり条件

  • ・坪数 30坪~50坪
  • ・賃料非公開物件を含む

こだわり条件で絞り込む

駅徒歩

築年数

耐震

エントランス

 

入居可能時期

その他

該当件数