お気に入りの登録はありません。
閲覧履歴はありません。

自由が丘・田園調布 、駅近の賃貸オフィス・貸事務所

自由が丘・田園調布エリアは、世田谷区の南東側に位置し、奥沢・深沢や等々力が含まれます。エリア内には目黒通りや駒沢通りが走り、東急東横線の自由が丘駅や東急目黒線の奥沢駅にアクセスできます。東急大井町線が横断する自由が丘・田園調布エリアには、オフィスビルや住宅やマンションなどが建ち並びます。なお、自由が丘駅南口を出てすぐのところに、目黒区と世田谷区の境界がございます。自由が丘・田園調布エリアのオフィスとしては、物件数も限られ、オフィス供給は多くありませんが、渋谷駅へのアクセスが魅力的なエリアです。自由が丘・田園調布エリアで事務所をお探しの方は、是非当社にお問い合わせください。

続きを読む

検索結果 5件 (7区画)

officeeでお問い合わせいただいた場合、仲介手数料はすべて無料です。

アーバンスペースの外観

アーバンスペース

住所
世田谷区尾山台2-29-17
最寄り駅
尾山台駅 5分
竣工
1994年
耐震
新耐震基準を満たす
ビル詳細へ
  • アーバンスペースの外観

  • アーバンスペースの部屋の雰囲気.1

  • アーバンスペースの部屋の雰囲気.2

  • アーバンスペースの部屋の雰囲気.3

  • アーバンスペースの周辺環境.4

基準階約22坪の賃貸オフィス物件。室内は住居タイプの間取りで、区画によっては和室があり。設備はバスルーム・モニター付きインターホン・システムキッチン・個別空調など。区画によって設備が異なる場合がありますので、内見時にご確認ください。竣工は1994年。
階数坪数月額費用坪単価入居可能日追加  
5階 28坪 270,909円 9,675円 2025年10月
お気に入りに追加
内見・資料請求
区画詳細へ

チェックした物件をまとめて問い合わせすることができます。

自由が丘フコク生命ビルの外観

自由が丘フコク生命ビル

住所
世田谷区奥沢7-2-9
最寄り駅
自由が丘駅 3分
竣工
1971年
ビル詳細へ
  • 自由が丘フコク生命ビルの外観

  • オフィスビル出入り口

  • エントランスホール

  • エレベーター

  • 自由が丘フコク生命ビ

  • 徒歩1分のローソン

  • 並びの鶏唐揚専賣店

ワンフロアの面積が約45坪の賃貸オフィス物件。募集の時期によっては分割区画もあります。詳細はお問合せください。竣工は1971年で、地上6階建て。エレベーターは1基です。
階数坪数月額費用坪単価入居可能日追加  
5階 45.31坪 要問合せ 要問合せ 即可能
お気に入りに追加
賃料を聞く
区画詳細へ

チェックした物件をまとめて問い合わせすることができます。

eisuビル自由が丘の図面

eisuビル自由が丘

住所
世田谷区奥沢5-24-4
最寄り駅
自由が丘駅 3分
竣工
1991年
耐震
新耐震基準を満たす
ビル詳細へ
階数坪数月額費用坪単価入居可能日追加  
2階 21.2坪 296,800円 14,000円 2026年3月
お気に入りに追加
内見・資料請求
区画詳細へ
3階 42.41坪 593,740円 14,000円 2026年3月
お気に入りに追加
内見・資料請求
区画詳細へ
4階 40.25坪 563,500円 14,000円 2026年3月
お気に入りに追加
内見・資料請求
区画詳細へ

チェックした物件をまとめて問い合わせすることができます。

第2シーランドビル自由が丘

住所
世田谷区奥沢6-33-14
最寄り駅
自由が丘駅 3分
竣工
1986年
ビル詳細へ
階数坪数月額費用坪単価入居可能日追加  
3階 27.23坪 490,024円 17,996円 2026年4月
お気に入りに追加
内見・資料請求
区画詳細へ

チェックした物件をまとめて問い合わせすることができます。

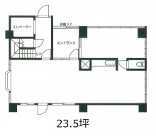
熊谷ビルの図面

熊谷ビル

住所
世田谷区等々力1-30-14
最寄り駅
尾山台駅 5分
竣工
1977年
ビル詳細へ
階数坪数月額費用坪単価入居可能日追加  
1階 23.53坪 480,000円 20,400円 相談
お気に入りに追加
内見・資料請求
区画詳細へ

チェックした物件をまとめて問い合わせすることができます。

チェックした物件を
お気に入りに追加
まとめてお問い合わせ

お気に入り物件登録は最大10件までです。
既にお気に入りに登録している物件を削除するか、
チェックの数を減らしてからご登録ください。

OK

お気に入りに追加しました

近隣の駅から探す

近隣のエリアから探す

自由が丘・田園調布の賃料相場

  • 20坪~30坪
    9,675円
    30坪~50坪
    -
  • 50坪~100坪
    -
    100坪~200坪
    -
  • 200坪以上
    10,000円

現在の検索条件

エリア

エリアを変更する

最寄駅

こだわり条件

  • ・賃料非公開物件を含む
  • ・駅徒歩:5分以内

こだわり条件で絞り込む

駅徒歩

築年数

耐震

エントランス

 

入居可能時期

その他

該当件数