全画面
※ レイアウトはイメージです。実際とは異なる場合があります。
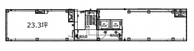
HOME > エリアからオフィスを探す > 福岡県 > 福岡市中央区 > 天神・大名・赤坂 > 大名 > フィル・パーク福岡大名2ビル(西鉄福岡(天神)、天神) > 6階 23.38坪
お問い合わせ内容を選ぶ
お問い合わせ内容を選ぶ
| 階数 | 坪数 | 月額費用 (税別) |
坪単価 (共益費込み) |
敷金 | 状況 | 入居可能日 | 図面 | ||
|---|---|---|---|---|---|---|---|---|---|
| 6階 | 23.38坪 | 363,600円 | 15,552円 | 6ヶ月 | 空室 | 即可能 |
|
|
|
| 7階 | 23.38坪 | 363,600円 | 15,552円 | 6ヶ月 | 空室 | 即可能 |
|
|
|
全画面
※ レイアウトはイメージです。実際とは異なる場合があります。