お気に入りの登録はありません。
閲覧履歴はありません。

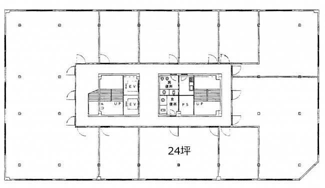
毎日東ビル 3階 36坪(玉造)

288,000 円/月 (税別)
坪単価 : 8,000 円/ 敷金 0ヶ月 ※保証会社の加入義務あり / 礼金 2ヶ月 / 償却 0ヶ月
入居可能日 即可能 / 最終確認 2025年10月16日

外観

1/

officeeからお問い合わせいただくと

仲介手数料無料

お問い合わせ内容を選ぶ

お気に入りに追加 お気に入りに追加
お気に入りに追加
近隣相場情報(共益費込みの坪単価)
集計中
基準階や竣工年を元にコンピューターが自動的に試算しています。
賃貸条件
月額費用
288,000 円(税別)
礼金
2ヶ月
坪単価
8,000 円/坪
償却
0ヶ月
敷金
0ヶ月 ※保証会社の加入義務あり
入居可能日
即可能
アクセス
住所
大阪市東成区中道3-15-16 [地図]
最寄り駅
玉造駅 徒歩4分
物件概要
物件名
毎日東ビル
基準階坪数
298.23坪
竣工
1973年
用途/仕様
賃貸事務所/オフィス
リニューアル
済み(2018年)
設備詳細
エントランス
土日・祝日開放
空調
個別空調
トイレ
男女別トイレ
天井高
2,500mm
エレベーター
2基
駐車場設備
有り

officeeからお問い合わせいただいた場合、 仲介手数料無料

お問い合わせ内容を選ぶ

お問い合わせ内容を選ぶ
この物件の最新状況を確認する この物件の最新状況を確認する
お問い合わせ(無料)
お気に入りに追加 お気に入りに追加
お気に入りに追加

近隣の駅から探す

近隣のエリアから探す

officeeからお問い合わせいただいた場合、 仲介手数料無料

お問い合わせ内容を選ぶ

お問い合わせ内容を選ぶ
この物件の最新状況を確認する この物件の最新状況を確認する
お問い合わせ(無料)
お気に入りに追加 お気に入りに追加
お気に入りに追加
新オフィスの営業開始・アフターフォローまでお任せください!

現在募集中の区画( 3区画)
最終確認:2025年10月16日

階数 坪数 月額費用
(税別)
坪単価
(共益費込み)
敷金 状況 入居可能日 図面    
3階 24坪 192,000円 8,000円 0ヶ月 ※保証会社の加入義務あり 空室 即可能
3階 36坪 288,000円 8,000円 0ヶ月 ※保証会社の加入義務あり 空室 即可能
7階 24坪 192,000円 8,000円 0ヶ月 ※保証会社の加入義務あり 空室 即可能
まとめて問い合わせ まとめて問い合わせ まとめて問い合わせ
まとめて問い合わせ
募集終了区画をみる

募集終了区画

階数 坪数 月額費用 坪単価 敷金 入居日 空室お知らせ  
2階 23坪 - - - 募集終了
3階 23坪 - - - 募集終了
3階 36坪 - - - 募集終了
3階 41坪 - - - 募集終了
3階 65坪 - - - 募集終了
3階 77坪 - - - 募集終了
4階 35坪 - - - 募集終了
7階 41坪 - - - 募集終了
7階 42坪 - - - 募集終了

お部屋の雰囲気

テナント専用のリフレッシュスペースが利用可

毎日東ビル(大阪市東成区中道)は、基準階約23坪の賃貸オフィスビル。
天井高は2500㎜あり、空調は個別空調です。一部室内の中心には柱があります。
喫煙スペースや貸会議室、リフレッシュスペースなどが利用可能です。

  • オフィス室内参考画像(4階・約36坪)

    オフィス室内参考画像(4階・約36坪)

  • 別角度の様子

    別角度の様子

  • 3階窓際の様子

    3階窓際の様子

  • 給湯スペース

    給湯スペース

  • 個別トイレ

    個別トイレ

  • 男性用トイレ

    男性用トイレ

  • 天井の様子

    天井の様子

  • 空調のスイッチ

    空調のスイッチ

  • 貸室出入口

    貸室出入口

  • 室外通路

    室外通路

  • エレベーター

    エレベーター

  • リフレッシュスペース

    リフレッシュスペース

  • 内階段

    内階段

  • オフィス室内参考画像(3階・約35坪)

    オフィス室内参考画像(3階・約35坪)

  • 別角度の様子

    別角度の様子

  • 貸室出入口

    貸室出入口

ビルの雰囲気

外装・エントランスり、リニューアル済み

毎日東ビル(大阪市東成区中道)は、1973年竣工の賃貸オフィス物件。
7階建てで、エレベーターは2基。平面駐車場が使用可能です。
24時間利用可能、夜間はオートロック式に変更されます。
エントランス・エレベーター・外装はリニューアル実施済みです。

  • オフィスビル出入口

    オフィスビル出入口

  • エントランス

    エントランス

  • エレベーターホール

    エレベーターホール

  • 1階の様子

    1階の様子

  • 駐車場

    駐車場

  • ネームプレート:毎日東ビル

    ネームプレート:毎日東ビル

周辺環境

最寄りは「玉造駅」

毎日東ビル(大阪市東成区中道)は、国道308号沿いの賃貸事務所物件。
コンビニやスーパーが徒歩圏内。飲食店も複数の駅が利用可能です。
最寄りは、玉造駅。住所は、大阪市東成区中道です。

  • 毎日東ビル前面の通り

    毎日東ビル前面の通り

  • 並びにあるセブンイレブン 大阪中道3丁目店

    並びにあるセブンイレブン 大阪中道3丁目店

  • 徒歩3分の大阪玉造郵便局

    徒歩3分の大阪玉造郵便局

  • 近くのすき家 玉造駅前店

    近くのすき家 玉造駅前店

  • 最寄りの「玉造駅」

    最寄りの「玉造駅」

officeeからお問い合わせいただいた場合、 仲介手数料無料

お問い合わせ内容を選ぶ

お問い合わせ内容を選ぶ
この物件の最新状況を確認する この物件の最新状況を確認する
お問い合わせ(無料)
お気に入りに追加 お気に入りに追加
お気に入りに追加

スタッフコメント

毎日東ビル(大阪市東成区中道)は、基準階約23坪の賃貸オフィス物件。天井高は2500㎜あり、空調は個別空調です。一部室内の中心には柱があります。喫煙スペースや貸会議室、リフレッシュスペースなどが利用可能。1973年竣工、7階建てのオフィスビル。エレベーターは2基。平面駐車場が使用可能です。24時間利用可能です。長堀通沿いの立地で、コンビニが徒歩圏内。大阪玉造郵便局まで徒歩3分です。周辺はマンションなどの住宅が多い印象。駅に近づくに連れ飲食店が多くなるでしょう。毎日東ビルの最寄りは玉造駅。住所は、大阪市東成区中道です。

周辺地図

取扱態様
仲介
取扱会社
47株式会社
東京都渋谷区広尾1-13-1 フジキカイ広尾ビル6/7F
電話番号:03-6859-4747    免許番号:国土交通大臣(1)第10369号