お気に入りの登録はありません。
閲覧履歴はありません。

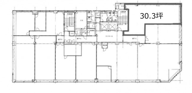
郵政福祉札幌第一ビル 8階 30.34坪(西4丁目、西8丁目)

賃料はお問合せください
敷金 12ヶ月 / 礼金 0ヶ月 / 償却 0ヶ月
入居可能日 即可能 / 最終確認 2026年1月15日

外観

1/

officeeからお問い合わせいただくと

仲介手数料無料

お問い合わせ内容を選ぶ

お気に入りに追加 お気に入りに追加
お気に入りに追加
近隣相場情報(共益費込みの坪単価)
13,500円~17,500
基準階や竣工年を元にコンピューターが自動的に試算しています。 大通・すすきのの賃貸オフィスの賃料相場を調べる
賃貸条件
月額費用
お問合せください
礼金
0ヶ月
坪単価
お問合せください
償却
0ヶ月
敷金
12ヶ月
入居可能日
即可能
アクセス
住所
札幌市中央区南一条西5-20 [地図]
最寄り駅
西4丁目駅 徒歩3分 / 西8丁目駅 徒歩3分 / 資生館小学校前駅 徒歩7分 / 大通駅 徒歩8分 / 中央区役所前駅 徒歩8分 / 狸小路駅 徒歩7分
物件概要
物件名
郵政福祉札幌第一ビル
基準階坪数
53.92坪
竣工
1983年
耐震
新耐震基準を満たす
用途/仕様
賃貸事務所/オフィス
リニューアル
済み(2016年)
設備詳細
エントランス
土日・祝日開放
空調
個別空調
トイレ
男女別トイレ
床仕様
OAフロア有
エレベーター
2基
駐車場設備
有り

officeeからお問い合わせいただいた場合、 仲介手数料無料

お問い合わせ内容を選ぶ

お問い合わせ内容を選ぶ
この物件の最新状況を確認する この物件の最新状況を確認する
お問い合わせ(無料)
お気に入りに追加 お気に入りに追加
お気に入りに追加

officeeからお問い合わせいただいた場合、 仲介手数料無料

お問い合わせ内容を選ぶ

お問い合わせ内容を選ぶ
この物件の最新状況を確認する この物件の最新状況を確認する
お問い合わせ(無料)
お気に入りに追加 お気に入りに追加
お気に入りに追加
新オフィスの営業開始・アフターフォローまでお任せください!

現在募集中の区画( 2区画)
最終確認:2026年1月15日

階数 坪数 月額費用
(税別)
坪単価
(共益費込み)
敷金 状況 入居可能日 図面    
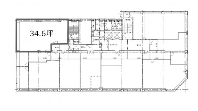
6階 34.6坪 要問い合わせ 非公開 12ヶ月 申込みあり 即可能
8階 30.34坪 要問い合わせ 非公開 12ヶ月 空室 即可能
まとめて問い合わせ まとめて問い合わせ まとめて問い合わせ
まとめて問い合わせ
募集終了区画をみる

募集終了区画

階数 坪数 月額費用 坪単価 敷金 入居日 空室お知らせ  
2階 54.42坪 - - - 募集終了
3階 54.27坪 - - - 募集終了
3階 64.17坪 - - - 募集終了
3階 98.76坪 - - - 募集終了
4階 36.01坪 - - - 募集終了
4階 36.24坪 - - - 募集終了
4階 45.62坪 - - - 募集終了
4階 81.62坪 - - - 募集終了
6階 31.33坪 - - - 募集終了
6階 31.33坪 - - - 募集終了
6階 34.46坪 - - - 募集終了
7階 34.93坪 - - - 募集終了
7階 36.51坪 - - - 募集終了
7階 46.41坪 - - - 募集終了
7階 53.93坪 - - - 募集終了
7階 82.82坪 - - - 募集終了
地下1階 44.06坪 - - - 募集終了

ビルの雰囲気

レンガ調の外観

郵政福祉札幌第一ビル(札幌市中央区南一条西)は、1983年竣工の賃貸事務所物件。
8階建てで、エレベーターは2基設置されています。
セキュリティは、機械警備システムを採用。
オフィスは24時間入退館可能です。

  • オフィスビル出入口

    オフィスビル出入口

  • エントランス

    エントランス

  • エレベーター(2基)

    エレベーター(2基)

  • 1階の札幌南一条郵便局

    1階の札幌南一条郵便局

  • 内階段

    内階段

  • ネームプレート

    ネームプレート

周辺環境

人通りが多く、飲食店が点在するエリア

郵政福祉札幌第一ビル(札幌市中央区南一条西)は、交差点角に位置する賃貸事務所物件。
周辺は人通りも多く、賑やかな雰囲気。付近には飲食店、コンビニが複数点在しています。
最寄りは札幌市電の西4丁目駅。住所は札幌市中央区南一条西です。

  • 郵政福祉札幌第一ビル前面の南1条通

    郵政福祉札幌第一ビル前面の南1条通

  • 並びのローソン 札幌南1条西六丁目店

    並びのローソン 札幌南1条西六丁目店

  • 徒歩1分のコメダ珈琲店 大通西6丁目店

    徒歩1分のコメダ珈琲店 大通西6丁目店

  • 付近の大通公園

    付近の大通公園

  • 最寄りの「西4丁目駅」

    最寄りの「西4丁目駅」

  • 徒歩圏内の「大通駅」

    徒歩圏内の「大通駅」

officeeからお問い合わせいただいた場合、 仲介手数料無料

お問い合わせ内容を選ぶ

お問い合わせ内容を選ぶ
この物件の最新状況を確認する この物件の最新状況を確認する
お問い合わせ(無料)
お気に入りに追加 お気に入りに追加
お気に入りに追加

スタッフコメント

郵政福祉札幌第一ビル(札幌市中央区南一条西)は、1983年竣工、8階建ての賃貸事務所物件。多くの人が行き交う南1条通の交差点に位置し、レンガ調の赤茶色の外観は遠くからでも目立ちます。メインエントランスは全日22時まで開放され、空調は個別方式を採用、エレベーターは2基設置されています。最寄は西4丁目駅と西8丁目駅でともに徒歩3分。大通駅へも徒歩8分でアクセスします。住所は札幌市中央区南一条西です。

周辺地図

取扱態様
仲介
取扱会社
47株式会社
東京都渋谷区広尾1-13-1 フジキカイ広尾ビル6/7F
電話番号:03-6859-4747    免許番号:国土交通大臣(1)第10369号