お気に入りの登録はありません。
閲覧履歴はありません。

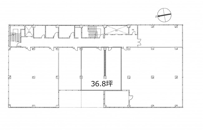
京都証券ビル 3階 34.24坪(烏丸、四条)

賃料はお問合せください
敷金 12ヶ月 / 礼金 0ヶ月 / 償却 0ヶ月
入居可能日 即可能 / 最終確認 2026年1月9日

外観

1/

officeeからお問い合わせいただくと

仲介手数料無料

お問い合わせ内容を選ぶ

お気に入りに追加 お気に入りに追加
お気に入りに追加
近隣相場情報(共益費込みの坪単価)
17,500円~22,500
基準階や竣工年を元にコンピューターが自動的に試算しています。 京都駅・四条烏丸の賃貸オフィスの賃料相場を調べる
賃貸条件
月額費用
お問合せください
礼金
0ヶ月
坪単価
お問合せください
償却
0ヶ月
敷金
12ヶ月
入居可能日
即可能
アクセス
住所
京都市下京区立売西町66 [地図]
最寄り駅
烏丸駅 徒歩1分 / 四条駅 徒歩4分
物件概要
物件名
京都証券ビル
基準階坪数
242.01坪
竣工
1962年
用途/仕様
賃貸事務所/オフィス
リニューアル
済み(2011年)
設備詳細
エントランス
土日・祝日開放
空調
個別空調
トイレ
男女別トイレ
天井高
2,460mm
床仕様
OAフロア有
エレベーター
3基
駐車場設備
有り

officeeからお問い合わせいただいた場合、 仲介手数料無料

お問い合わせ内容を選ぶ

お問い合わせ内容を選ぶ
この物件の最新状況を確認する この物件の最新状況を確認する
お問い合わせ(無料)
お気に入りに追加 お気に入りに追加
お気に入りに追加

近隣の駅から探す

近隣のエリアから探す

officeeからお問い合わせいただいた場合、 仲介手数料無料

お問い合わせ内容を選ぶ

お問い合わせ内容を選ぶ
この物件の最新状況を確認する この物件の最新状況を確認する
お問い合わせ(無料)
お気に入りに追加 お気に入りに追加
お気に入りに追加
新オフィスの営業開始・アフターフォローまでお任せください!

現在募集中の区画( 2区画)
最終確認:2026年1月9日

階数 坪数 月額費用
(税別)
坪単価
(共益費込み)
敷金 状況 入居可能日 図面    
3階 34.24坪 要問い合わせ 非公開 12ヶ月 空室 即可能
6階 36.89坪 要問い合わせ 非公開 12ヶ月 空室 2026年3月
まとめて問い合わせ まとめて問い合わせ まとめて問い合わせ
まとめて問い合わせ
募集終了区画をみる

募集終了区画

階数 坪数 月額費用 坪単価 敷金 入居日 空室お知らせ  
3階 22.78坪 - - - 募集終了
3階 23.03坪 - - - 募集終了
3階 23.81坪 - - - 募集終了
3階 55.89坪 - - - 募集終了
3階 90.14坪 - - - 募集終了
3階 106.56坪 - - - 募集終了
4階 20.67坪 - - - 募集終了
4階 34.24坪 - - - 募集終了
4階 34.24坪 - - - 募集終了
4階 34.24坪 - - - 募集終了
4階 34.24坪 - - - 募集終了
4階 54.92坪 - - - 募集終了
4階 68.49坪 - - - 募集終了
5階 43.29坪 - - - 募集終了
5階 68.49坪 - - - 募集終了
5階 111.79坪 - - - 募集終了
5階 130.38坪 - - - 募集終了
5階 242.17坪 - - - 募集終了
6階 21.76坪 - - - 募集終了
6階 34.25坪 - - - 募集終了
6階 34.25坪 - - - 募集終了
6階 68.5坪 - - - 募集終了
6階 91.63坪 - - - 募集終了
7階 55.85坪 - - - 募集終了
8階 21.97坪 - - - 募集終了
8階 23.81坪 - - - 募集終了
8階 23.81坪 - - - 募集終了
8階 24.08坪 - - - 募集終了
8階 24.08坪 - - - 募集終了
8階 24.08坪 - - - 募集終了
地下1階 42.02坪 - - - 募集終了
地下1階 65.3坪 - - - 募集終了

ビルの雰囲気

シルバーのスタイリッシュなエントランス

京都証券ビル(京都市下京区立売西町)は、1962年竣工の賃貸オフィス物件。
8階建てで、エレベーターは3基設置されています。
32台収容可能な機械式の駐車場併設。セキュリティは機械警備です。

  • オフィスビル出入口

    オフィスビル出入口

  • エントランスホール

    エントランスホール

  • エレベーター

    エレベーター

  • 1階のテナント

    1階のテナント

  • 1階の様子

    1階の様子

  • ネームプレート:京都証券ビル

    ネームプレート:京都証券ビル

周辺環境

「烏丸駅」18番出口直結

京都証券ビル(京都市下京区立売西町)は、四条通沿いにある賃貸事務所物件。
並びには複合商業施設があり、人通りが多く賑やかなエリアです。
最寄りは、烏丸駅。住所は、京都市下京区立売西町です。

  • 京都証券ビル前面の通り

    京都証券ビル前面の通り

  • 至近のファミリーマート 四条高倉店

    至近のファミリーマート 四条高倉店

  • 近くのすき家 四条店

    近くのすき家 四条店

  • 徒歩2分の三菱UFJ信託銀行 京都支店

    徒歩2分の三菱UFJ信託銀行 京都支店

  • 最寄りの「烏丸駅」

    最寄りの「烏丸駅」

  • 「四条駅」も利用可能

    「四条駅」も利用可能

officeeからお問い合わせいただいた場合、 仲介手数料無料

お問い合わせ内容を選ぶ

お問い合わせ内容を選ぶ
この物件の最新状況を確認する この物件の最新状況を確認する
お問い合わせ(無料)
お気に入りに追加 お気に入りに追加
お気に入りに追加

スタッフコメント

京都証券ビル(京都市下京区立売西町)は、1962年竣工の賃貸オフィス物件です。2009年に耐震補強工事および外壁改修・空調更新を行っています。基準階天井高は2,450mm(OAフロア設置時)で、トイレは各階男女別。エレベーターは乗用3基+人荷用1基設置されています。8階建ての賃貸オフィス物件。基準階坪数は約242坪です。京都証券ビルは、四条駅・烏丸駅18番出口直結の賃貸事務所物件。四条通沿いにあり、飲食店をはじめ商業店舗が豊富な環境です。住所は京都市下京区立売西町です。

※ 掲載内容が実際と異なる場合、弊社までお知らせください。

周辺地図

取扱態様
仲介
取扱会社
47株式会社
東京都渋谷区広尾1-13-1 フジキカイ広尾ビル6/7F
電話番号:03-6859-4747    免許番号:国土交通大臣(1)第10369号