品川区上大崎2-15-21

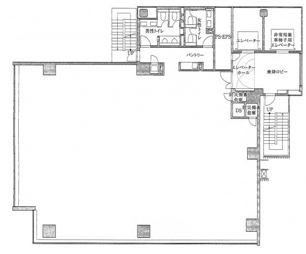
PMO目黒(品川区上大崎)は、基準階約95坪の賃貸オフィス物件。2025年竣工の10階建てで、エレベーターは2基設置されています。駅前の立地、ガラス張りの外観で視認性が高いでしょう。執務形状は長方形。南面ガラスカーテンウォールにより高い採光性。無柱空間でレイアウト効率の良いオフィス空間です。周辺はオフィス街。付近には飲食店や店舗が充実しています。PMO目黒の最寄りは目黒駅。住所は、品川区上大崎です。
お問い合わせ内容を選ぶ
| 階数 | 坪数 | 月額費用 | 坪単価 | 敷金 | 入居日 | 空室お知らせ | |
|---|---|---|---|---|---|---|---|
| 3階 | 95.5坪 | - | - | - | 募集終了 | ||
| 4階 | 95.5坪 | - | - | - | 募集終了 | ||
| 5階 | 95.5坪 | - | - | - | 募集終了 | ||
| 6階 | 95.5坪 | - | - | - | 募集終了 | ||
| 7階 | 95.67坪 | - | - | - | 募集終了 | ||
| 9階 | 95.5坪 | - | - | - | 募集終了 | ||
| 10階 | 95.5坪 | - | - | - | 募集終了 |
全7件を表示する 表示件数を減らす
物件探しでお困りの方は、経験豊富なスタッフにお気軽にご相談ください。

