お気に入りの登録はありません。
閲覧履歴はありません。

サッポロファクトリー2条館(バスセンター)の賃貸オフィス

札幌市中央区北二条東4-1-11

1件: 区画募集有り
物件概要
物件名
サッポロファクトリー2条館
基準階坪数
1216坪
竣工
1993年
用途/仕様
賃貸事務所/オフィス
アクセス
住所
札幌市中央区北二条東4-1-11
最寄り駅
バスセンター駅 徒歩9分
想定単価幅(共益費込みの坪単価)
集計中
基準階や竣工年を元にコンピューターが自動的に試算しています。 の賃貸オフィスの賃料相場を調べる

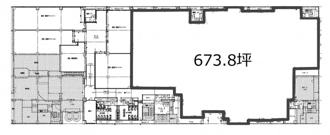
現在募集中の区画(1区画)
最終確認:2026年01月15日

階数 坪数 月額費用
(税別)
坪単価
(共益費込み)
入居可能日 図面        
4階 673.84坪 要問合せ 要問合せ 即可能
区画詳細へ 内見・資料請求

チェックした物件をまとめて問い合わせすることができます

officeeからお問い合わせいただいた場合、 仲介手数料無料

お問い合わせ内容を選ぶ

お問い合わせ内容を選ぶ

近隣の駅から探す

近隣のエリアから探す

officeeからお問い合わせいただいた場合、 仲介手数料無料

お問い合わせ内容を選ぶ

お問い合わせ内容を選ぶ

募集終了区画

階数 坪数 月額費用 坪単価 敷金 入居日 空室お知らせ  
4階 130.3坪 - - - 募集終了
4階 334.45坪 - - - 募集終了

物件探しでお困りの方は、経験豊富なスタッフにお気軽にご相談ください。

全物件仲介手数料無料 専任スタッフが契約までサポート 全国の賃貸オフィスの取扱い

メールで相談する

電話でのご相談はこちら 0120-981-247 お問い合わせ受付時間:平日 9:00~19:00